Trots op ons project
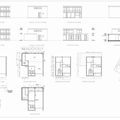
Aanbouw/verbouwing Boxmeer
Complete aanbouw/verbouwing te Boxmeer.
Tijdens dit project zijn onderstaande werkzaamheden uitgevoerd:
- Ontwerp
- Bouwtekeningen/vergunningsaanvraag
- Complete realisatie verbouwing/aanbouw
- Fundering
- Metselwerk
- Timmerwerk
- Afbouw
- Plaatsing keuken
- Tegelwerk
Bekijk enkele voor en na foto's


























